0
2 Pièce(s)
1 Chambre(s)

Appt 2 pièces SAINT AUBIN D'AUBIGNE

Saint-Aubin-d'Aubigné (35250)
Réf : 01A009

Découvrez un cadre de vie privilégié à Saint-Aubin-d'Aubigné, où se mêlent confort, modernité et accessibilité.

Ce nouveau programme immobilier offre des appartements lumineux et bien agencés, pensés pour répondre aux attentes des familles et des jeunes actifs. Profitez d'espaces de vie fonctionnels, d'un environnement paysager et de nombreuses prestations qui sauront séduire les futurs occupants. Le quartier de Saint-Aubin-d'Aubigné est en pleine expansion et bénéficie de toutes les commodités nécessaires au quotidien.

À proximité, vous trouverez des commerces, des services de santé, ainsi que des espaces verts propices aux balades en plein air. La convivialité du voisinage est un atout supplémentaire qui contribue à créer un cadre de vie agréable et dynamique.

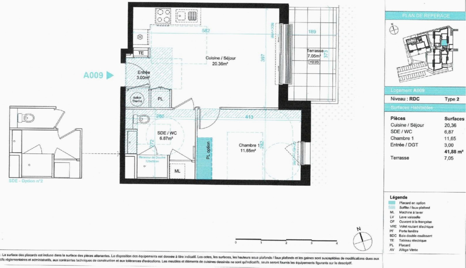
Appartement 2 pièces : séjour / cuisine de 20.36 m², chambre, salle d'eau avec wc , entrée, terrasse de 7 m²

Parking inclus

Livraison du programme pour le dernier trimestre 2027.

Les charges de copropriété sont estimés à 84 € par mois.

Différents T2 sont encore disponibles pour ce programme neuf. Prenez contact avec Instinct Immobilier afin de trouver le bien de vos rêves.


Ce bien vous intéresse ?
Fieldset par défaut
Fieldset par défaut
Validation

* Champs obligatoires

Contacter l'agence
Validation
Les informations recueillies sur ce formulaire sont enregistrées dans un fichier informatisé par La Boite Immo agissant comme Sous-traitant du traitement pour la gestion de la clientèle/prospects de l'Agence / du Réseau qui reste Responsable du Traitement de vos Données personnelles.
La base légale du traitement repose sur l’intérêt légitime de l'Agence / du Réseau.
Elles sont conservées jusqu'à demande de suppression et sont destinées à l'Agence / au Réseau.
Conformément à la loi « informatique et libertés », vous pouvez exercer votre droit d'accès aux données vous concernant et les faire rectifier en contactant l'Agence / le Réseau.
Si vous estimez, après avoir contacté l'Agence / le Réseau, que vos droits « Informatique et Libertés » ne sont pas respectés, vous pouvez adresser une réclamation à la CNIL.
Nous vous informons de l’existence de la liste d'opposition au démarchage téléphonique « Bloctel », sur laquelle vous pouvez vous inscrire ici : https://www.bloctel.gouv.fr 
Dans le cadre de la protection des Données personnelles, nous vous invitons à ne pas inscrire de Données sensibles dans le champ de saisie libre
Ce site est protégé par reCAPTCHA, les Politiques de Confidentialité et les Conditions d'Utilisation de Google s'appliquent.

En Bref

Code postal 35250
Surface habitable (m²) 48,93 m²
Nombre de chambre(s) 1
Nombre de pièces 2
Nb de salle d'eau 1
Terrasse OUI
Exposition Est

Infos financières

Prix de vente honoraires TTC inclus 159 900 €

Energie

Energie
DPE
GES